Nabízíme k pronájmu suchý a temperovaný skladový objekt (bývalá teplárna) o celkové zastavěné ploše 741 m² s výbornou dopravní dostupností – pouhých 160 m od stanice metra Hůrka. Objekt je ideální pro skladování, lehkou výrobu nebo logistické zázemí firmy.
Pronajímá se jako sklad a případná jiná povolení užívání si musí vyřídit nový nájemce.
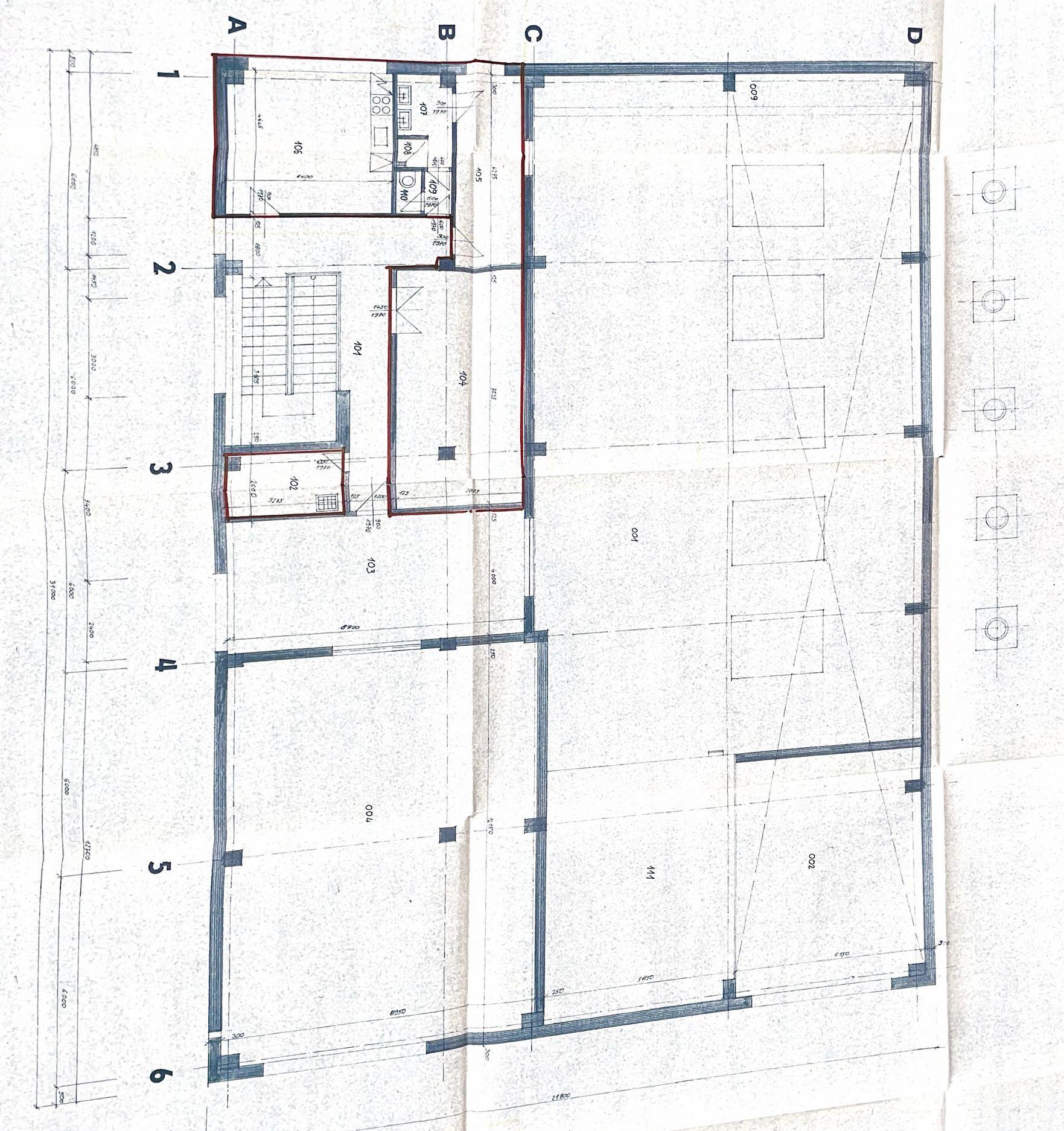
Skladové prostory se nacházejí v nepodsklepeném přízemí a zahrnují jeden velký sklad cca 360 m2 a dva menší sklady (o velikosti cca 65 a 105 m²) + v přízemí je připravena instalace pro další zázemí.V patře (cca 200 m2), které je přístupné po schodišti, jsou k dispozici kanceláře a sociální zázemí.
Hlavní výhody objektu:
- výška stropu 8,3 m
- elektřina 400 V
- samostatný vjezd do objektu (výška 3,3 m, šířka 3,0 m)
- dobrá dostupnost pro zásobování
- výborná poloha v blízkosti metra
Objekt bude předán vyklizený a je k dispozici do 5 dnů od podpisu nájemní smlouvy.
Nájemní podmínky:
Nájemné: 115 000 Kč / měsíc bez DPH
Služby: 20 000 Kč / měsíc bez DPH (zálohy na vytápění - dálkové)
Elektřina: přepis na nájemníka
Vodné/stočné: dle skutečné spotřeby
Kauce: 230 000 Kč
Doba nájmu: na dobu neurčitou, výpovědní lhůta 6 měsíců.
Provize RK: 1 měsíční nájem + DPH.
V případě zájmu nás neváhejte kontaktovat pro více informací nebo domluvení prohlídky.
- Druh objektu:skeletová
- Stav objektu:velmi dobrý
- Druh prostor:Skladovací
- Doprava:silnice; MHD; autobus
- Elektřina:Elektro - 400 V
- Voda:Vodovod
- Topení:Ústřední - dálkové
- Odpad:Kanalizace
