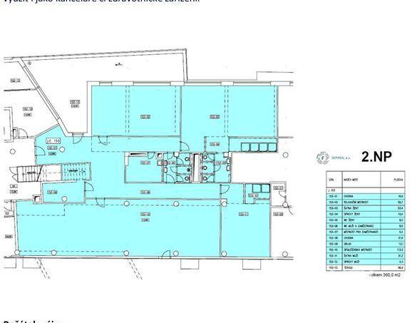
Nebytové prostory s pronajímatelnou plochou 360 m2 ve 2. NP s výtahem a se vstupem z pasáže, která spojuje ulici Hradeckou a Chrudimskou. Aktuálně jsou prostory provozované jako studio HOT YOGY. Ideální pro zájemce hledající podobné využití (masážní studio, YOGA studio, pilates, apod.). Lze i po dohodě se stávajícím nájemcem převzít zařízení a vybavení studia, není to však podmínkou. Prostory je možné po úpravě využít i jako kanceláře či zdravotnické zařízení.
Počátek nájmu - prostory jsou k dispozici po domluvě se stávajícím nájemníkem.
Nájemné - cena k jednání, od 350,- Kč/m2/měsíc (bez DPH).
Zálohy na služby - určí se dle zvoleného provozu. Na základě aktuálních cen energií a využití prostoru je stanovena výše zúčtovatelných záloh na služby a vlastní spotřebu na 145,- Kč/m2/měsíc vč. DPH, s ročním vyúčtováním.
Doba nájmu - ideálně na dobu určitou, min. 3 let.
Jistota - ve výši 2měsíčních nájmů vč. DPH a 2 záloh na služby bude uhrazena při podpisu smlouvy, resp. nejpozději v den počátku nájmu.
Technická specifikace nebytového prostoru:
- elektrická energie, přívod teplé a studené vody, centrální vytápění
- vlastní sociální zázemí
- vzduchotechnika
- vstup do společných prostor na čipy
- světlá výška 2,9 m
Vybavení budovy:
- ostraha 24/7
- EPS, CCTV
- vstup na čipy
- podzemní garáže
Pronajímatel je připraven:
- konzultovat technické požadavky nájemce na úpravu prostor
- realizovat stavební úpravy prostor
- zajistit projednávání požadovaných změn s dotčenými orgány
- Druh objektu:skeletová
- Stav objektu:velmi dobrý
- Druh prostor:Jiné
- Doprava:MHD
- Voda:Vodovod
- Telekomunikace:Internet
- Topení:Ústřední - dálkové
- Odpad:Kanalizace
- Ostatní rozvody:Kabelové rozvody; Ostatní rozvody
- Energetická náročnost budovy:C - Úsporná
- Energetický ukazatel
podle vyhlášky:č. 264/2020 Sb.
