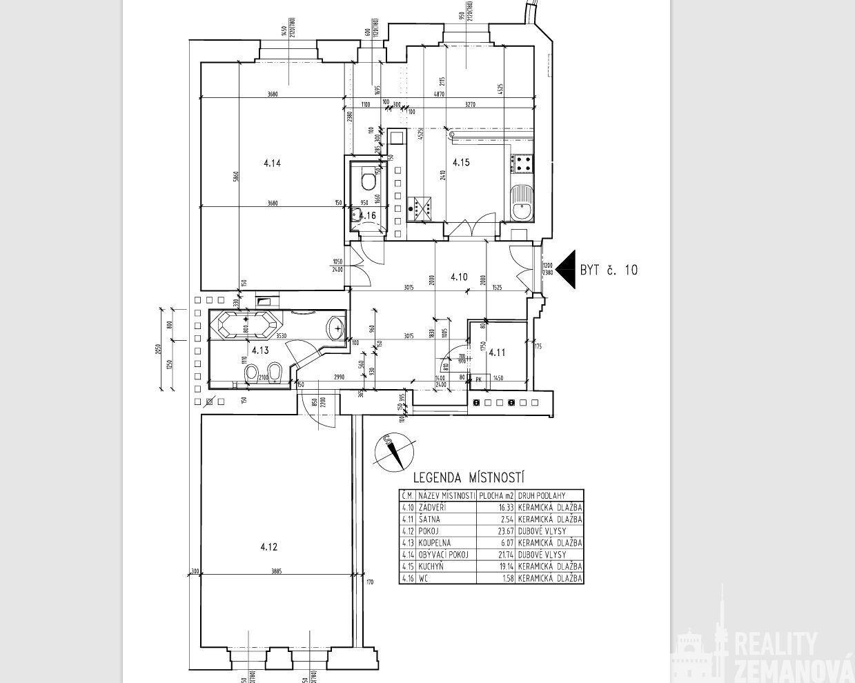
Nabízíme k pronájmu reprezentativní, prostorný byt 2+kk o ploše 91 m², situovaný ve 4. nadzemním podlaží kompletně zrekonstruovaného rezidenčního domu na vyhledávané adrese Mánesova 32, v samém srdci královských Vinohrad – mezi náměstím Jiřího z Poděbrad a náměstím Míru.
Byt je nezařízený, což umožňuje budoucímu nájemci přizpůsobit si interiér dle vlastního vkusu. Součástí vybavení je moderní kuchyňská linka se sporákem, mikrovlnnou troubou, myčkou nádobí, lednicí a mrazničkou. Koupelna i obytné prostory jsou ve vysokém standardu. Pračka není součástí vybavení.
Vytápění zajišťuje vlastní plynový etážový kotel, v bytě je instalován elektronický zabezpečovací systém.
Parkování je možné za poplatek v garážích přímo v domě, které jsou řešeny ve třech podlažích pomocí autovýtahu. Garáže jsou střeženy kamerovým systémem.
Dům nabízí nadstandardní úroveň bezpečnosti a komfortu:
osobní výtah
výtah pro automobily
elektronický zabezpečovací systém napojený na PCO
kamerový systém s dlouhodobou archivací
elektronický požární systém v garážích
rozvody vysokorychlostního internetu, TV, satelitu a telefonu
Velkým benefitem je společná terasa se zahradou, umístěná v klidné dvorní části objektu na střeše garáží – ideální místo pro relaxaci v centru města.
Energetická náročnost budovy: třída D.
Finanční podmínky:
Měsíční nájem: 26.000 Kč
Zálohy na služby: 5.000 Kč (včetně plynu a elektřiny)
Internet: 400 Kč / měsíc (volitelné)
Parkovací stání: 4.000 Kč / měsíc včetně služeb a DPH
Provize RK: 1× měsíční nájem + DPH
Nelze domácí mazlíčky.
- Dispozice bytu:2+kk
- Podlaží v domě:4
- Počet podlaží v domě:5
- Celková podlahová plocha:91 m2
- Druh objektu:cihlová
- Stav objektu:velmi dobrý
- Vlastnictví:osobní
- Umístění objektu:centrum obce
- Doprava:silnice; MHD; autobus
- Voda:Vodovod
- Telekomunikace:Telefon; Internet
- Plyn:Plynovod
- Topení:Ústřední - plynové
- Odpad:Kanalizace
- Ostatní rozvody:Kabelové rozvody; Ostatní rozvody
- Energetická náročnost budovy:D - Méně úsporná
- Energetický ukazatel
podle vyhlášky:č. 264/2020 Sb.
