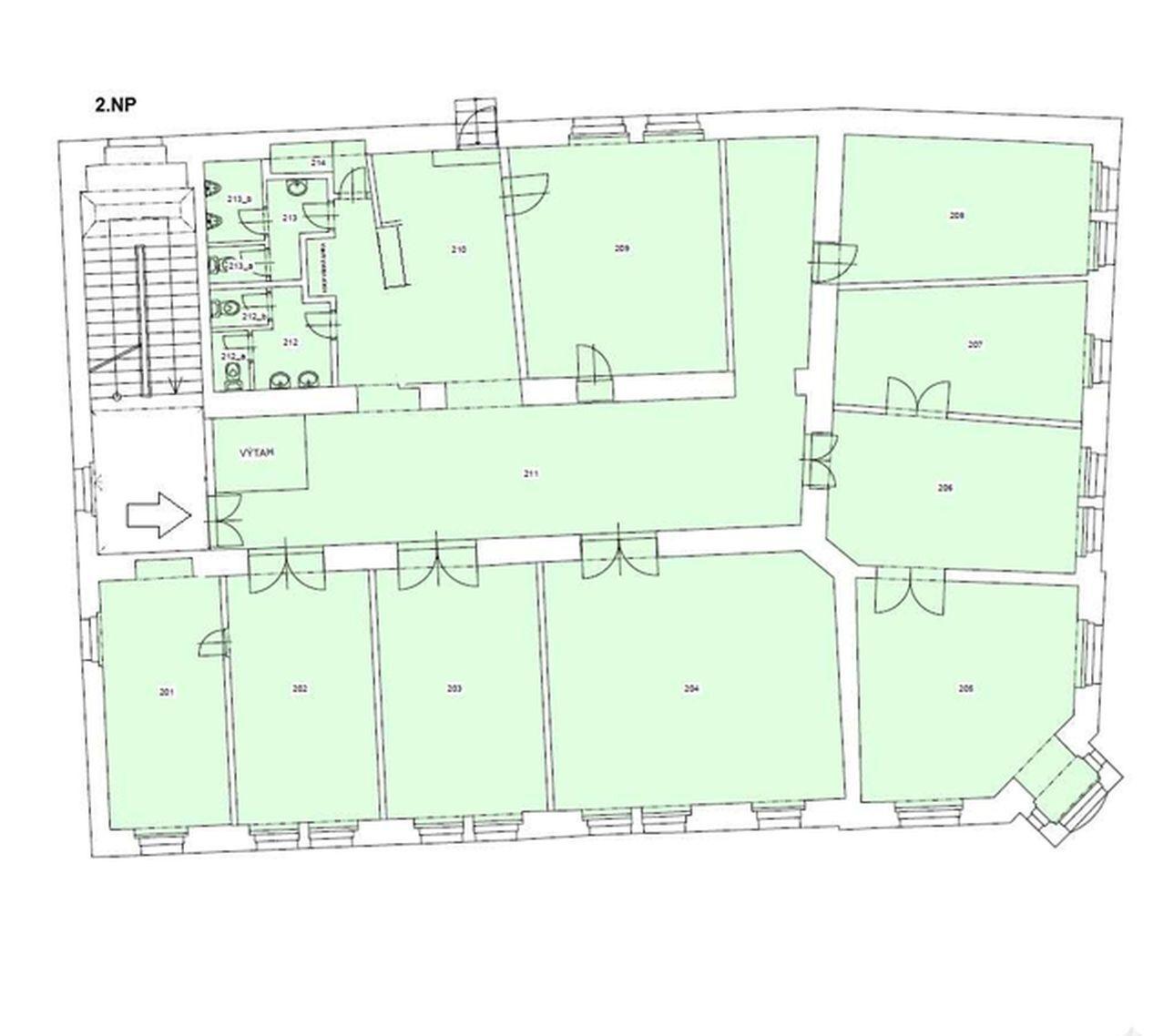
Nabídka na nebytového prostoru k pronájmu v bývalé secesní továrníkově vile, o výměře 325,03 m2. Jedná se o prostorné místnosti s velkou plochou a vysokými stropy se štukovou výzdobou. Dostatek světla v interiérech zajišťuje nárožní poloha vily s jihozápadní orientací, vysokými členěnými obloukovými okny, které doplňují vnitřní prosklené dveře s dekorativními motivy secese. Vila, která je součástí komplexu AGORA FLORA nabízí celkem čtyři nadzemní podlaží, přičemž nabízený nebytový prostor o výměře 325,03 m2 se nachází ve 2.NP. Prostory jsou svým charakterem vhodné pro využití jako kanceláře, případně po úpravě a rekolaudaci i jako ordinace lékařů.
Možnost pronájmu podzemního parkovacího stání.
Komplex má exkluzivní polohu v centru Vinohrad. Stanice metra A – Flora, tramvajové i autobusové zastávky jsou v bezprostřední blízkosti objektu.
V objektu se nachází mimo jiné: prodejna PENNY, fitness centrum, kancelářské prostory, ordinace psychoterapeuta, studio Hot jógy, kadeřnictví, manikúra, ordinace dětských lékařů, ordinace zubních lékařů, klinika stomatologie a zubní hygieny, Indická restaurace (od III/2026), asijská restaurace, kavárna, půjčovna sportovních potřeb (lyže, kola), servis jízdních kol
Nájemné: cena k jednání, od 350,- Kč/m2/měsíc (bez DPH), v závislosti na délce nájemního vztahu a požadovaných stavebních úpravách.
K pronájmu: od 1.4.2026
Zálohy na služby (aktuální): 145,- Kč/m2/měsíc vč. DPH (vč. záloh na vlastní spotřebu energií),
zúčtovatelná záloha s ročním vyúčtováním.
Doba nájmu: preferujeme nájemní smlouvu na dobu určitou, min. 3 let.
Jistota ve výši 2měsíčních nájmů vč. DPH a 2 záloh na poskytované služby bude uhrazena při podpisu smlouvy, resp. nejpozději v den počátku nájmu.
Neplatíte provizi RK.
- Plocha:325 m2
- Druh objektu:cihlová
- Stav objektu:velmi dobrý
- Druh prostor:Kanceláře
- Doprava:silnice; MHD; autobus
- Telekomunikace:Internet
- Topení:Ústřední - dálkové
- Odpad:Kanalizace
- Ostatní rozvody:Kabelové rozvody; Ostatní rozvody
- Energetická náročnost budovy:D - Méně úsporná
- Energetický ukazatel
podle vyhlášky:č. 264/2020 Sb.
